ID CP795423

Titan, Rebreanu 5 min. metrou,parc, izolat termic

ID CP795423

9,000,000 €

Apartament cu 3 camere de vânzare
Titan, Bucuresti
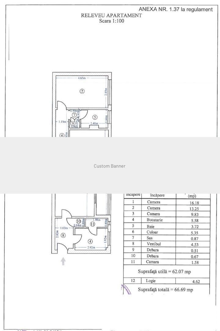
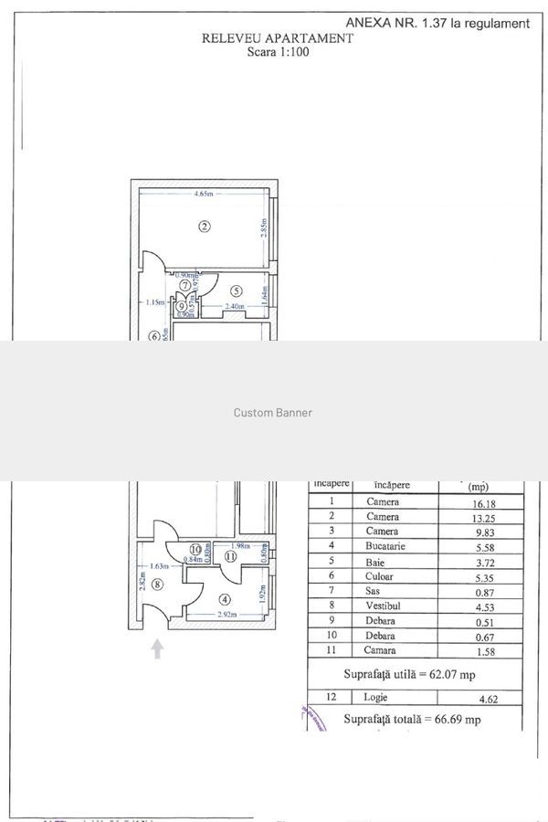
67 mp
1967

parcare ADP, bloc civilizat, inconjurat de verdeata, semistradal, acces rapid metrou-parc, piata Minis, terasa refacuta, parchet lemn masiv, curat, doar pt. cei care cunosc avantajele ultimului etaj. Rog seriozitate,

Titan-semistradal Liviu Rebreanu,la doar 5minute de mers pe jos fata de parc si gura de metrou Titan,Agentie imobiliara,vinde in exclusivitate,apartament confort1 sporit,67mp,Ocazie,include si parcare ADP,bloc foarte civilizat,inconjurat de verdeata,liniste,acces rapid metrou si parc,piata minis,lidl si mega image la 2minute,terasa refacuta total,parchet lemn masiv-ca nou,foarte bine intretinut,lavabila,tapet,in rest grup sanitar si bucatarie necestita renovare,doar ptr cei care cunosc avantajele ultimului etaj,oferta reala,ideala investitie,acte la zi,acte la zi,ap este liber si disponibil imediat,rugam si oferim seriozitate!

Citește mai mult

  • Tip apartament
    Apartament
  • Compartimentare
    Semidecomandat
  • Număr camere
    3
  • Etaj
    4
  • Suprafață utilă
    67 mp
  • Disponibilitate
    Imediat
  • Stare interior
    Renovat
  • Număr balcoane
    1
  • Imobil
    Bloc de apart.
  • An construcție
    1967
  • Tip construcție
    Cărămidă
  • Reabilitat termic
    Da
  • Număr etaje clădire
    4

Facilități

Manager Agentescu - Demo & Imobiliare
Manager Agentescu
Manager

0745888222


Solicită chiar acum o vizionare
Telefon
Sună acum Solicită vizionare
Necesare:

Site-ul nu poate funcționa corect fără aceste cookie-uri. Vezi cookie-urile

Statistică:

Strângem statistici anonime despre voi, vizitatorii unici, pentru a vă îmbunătăți experiența dumneavoastră. Vezi cookie-urile

Marketing:

Pentru a ne promova mai eficient serviciile noastre, folosim cookies pentru a vă identifica și a vă oferi proprietăți și servicii personalizate. Vezi cookie-urile

Acest site folosește cookies, află detalii. Alege ce tipuri de cookies dorești să permitem: